
799.900 US$ USD
Casa Unifamiliar en Venta, 172 Pine Swamp Road, Cumberland, Rhode Island 02864, Estados Unidos
- MLS Nº1403289
- Habitaciones3
- Baños3
- Tamaño de la vivienda/parcela
201 m² (2.160 ft²)
Listado por Keller Williams Leading Edge
La Casa Unifamiliar en Venta ubicada en 172 Pine Swamp Road, Cumberland, Rhode Island 02864, Estados Unidos actualmente está en venta172 Pine Swamp Road, Cumberland, Rhode Island 02864, Estados Unidos está listado para799.900 US$.Esta propiedad tiene 3 dormitorios, 3 baños características.
Características del inmueble
Propiedad
- Tamaño del inmueble:
201 m² (2.160 ft²) - Características: GarajeSótano
Lote/Terreno
- Tamaño del terreno/parcela:
34.358 m² (369.824 ft²) - Descripción del lote: Carretera PavimentadaMadera
Construcción
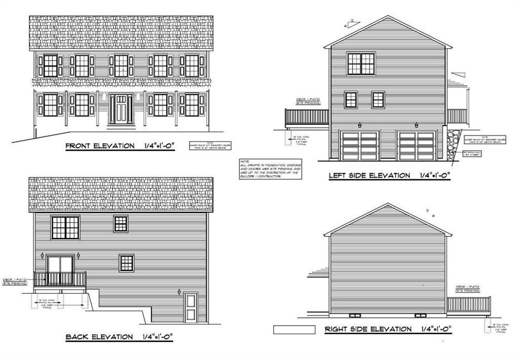
- Año de construcción: 2026
- Estilo: Colonial
- Subsuelo y cimientos: Sin TerminarPlanta De Sótano Completa
Estacionamiento/Garaje
- Descripción del garaje: Garaje Adosado
Habitaciones
- Habitaciones: 3
Baños
- Total de baños: 3
- Baños completos: 2
- Aseos / medios baños: 1
Características interiores
- Pisos: Maderas NoblesBaldosa CerámicaMoqueta
Calefacción y refrigeración
- Sistema de calefacción: Gas En BombonaGasóleoAire ForzadoCentral
- Sistema de refrigeración: Aire Acondicionado
Servicios públicos
- Otros servicios: Fosa Séptica
Comunidad
- Características: Campo De Golf
Descripción
Welcome to this stunning new construction home, thoughtfully designed and set within a peaceful, wooded backdrop that offers privacy and natural beauty. Step inside to a well-designed, open-concept floor plan featuring hardwood floors, a large living room and clean, modern finishes throughout. The heart of the home is the show-stopping kitchen, complete with a large center island, white shaker cabinetry, stainless steel appliances, and ample prep and seating space—perfect for entertaining or everyday living. The kitchen flows seamlessly into the dining area and spacious living room, creating an inviting layout ideal for gatherings of any size. Rounding out the first floor is a flex space useful for a sitting room, home office or whatever needs you may have! The home offers generously sized bedrooms, including a serene primary suite designed as a true retreat, with abundant closet space and a beautifully finished en-suite bath. There are 2 more bedrooms on the second floor in addition to a bonus room great for an office, play room, etc! A 2 car garage, tons of storage space and a functional layout make this home as practical as it is beautiful. Surrounded by woods, this property delivers a rare combination of brand-new construction and a tranquil, natural setting, while still offering modern comfort and efficiency. Act now while you can select your finishes! Digital photos are to be used for visual and inspirational purposes only and may show items not included in list price.
Ubicación
172 Pine Swamp Road, Cumberland, Rhode Island 02864, Estados Unidos