




Listado por Vanderbilt International Prop.
O Apartamento à venda localizado em Willow Lane Leeward B, Portsmouth, Rhode Island 02871, Estados Unidos está atualmente disponível para venda.Willow Lane Leeward B, Portsmouth, Rhode Island 02871, Estados Unidos está listado porUS$ 1.895.000.Esta propriedade possui as seguintes características:3 quartos, 5 banheiros.
US$ 1.895.000 USD
Apartamento à venda, Willow Lane Leeward B, Portsmouth, Rhode Island 02871, Estados Unidos
- Referência1398923
- Quartos3
- Banheiros5
- Tamanho da casa/lote
254 m² (2.737 ft²)
Características da propriedade
Nieruchomość
- Tamanho da propriedade:
254 m² (2.737 ft²) - Cechy: AlpendreGaragemEsplanadaLareiraPatio/Alpendre/Esplanada Blindada
- Lokalizacja: À Beira D'água
Lote/Terreno
- Opis działki: Estrada PavimentadaSistema De Rega
Budowa
- Ano de construção: 2026
Estacionamento/Garagem
- Opis parkingu: Reservado
- Opis garażu: Comando Para A Porta Da GaragemGaragem IncorporadaComando Para A Porta Da Garagem
Quartos
- Quartos: 3
Banheiros
- Łącznie łazienki: 5
- Pełne łazienki: 4
- ½ łazienki: 1
Características internas
- Podłogi: Madeira De LeiAzulejo Cerâmico
- Liczba kominków: 1
- Opis kominka: Gás
Características externas
- Przestrzenie zewnętrzne: AlpendreEsplanada
- Miejsca parkingowe:
Vista
- Cechy: Vista Para A Água
Ogrzewanie i chłodzenie
- System ogrzewania: Gás NaturalÓleoAr ForçadoGásZoneado
- Układ chłodzenia: Ar Condicionado
Narzędzia
- Inne narzędzia: Serviços SubterrâneosSistema De Esgoto Público
Comunidade
- Cechy: Campo De GolfePiscinaMarina
Descrição
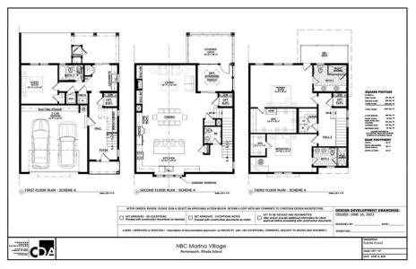
Marina Village Townhomes - Construction will soon begin on eight very special townhomes located steps from The Aquidneck Club and adjacent to the Carnegie Tower Pool Pavilion with views to Narragansett Bay. Four unique coastal buildings will house two townhomes per building. Each townhome will feature a private elevator for all three floors. The first floor offers an “in-law” suite with kitchenette and washer/dryer and bathroom. The second floor offers open living area with chef’s kitchen, half bathroom and a screened in porch which opens to a covered deck. The third-floor features two ensuite bedrooms with laundry with the primary bedroom with an open deck. All floors are accessed by private elevator and private stairwell. Each townhome offers owners a private courtyard with an outdoor shower, an integral two-car garage and two off-street parking. Townhome owners enjoy private access to The Tower pool pavilion and a 70 sq. ft. private heated and cooled pool caba with a living area and full bathroom. MVT residents also receive access and use of the first-floor amenities of The Tower including fitness center, board room and seating areas. Marina Village Townhomes occupancy is scheduled for Fall 2026. Monthly Association Fees to be determined.
Localização
Willow Lane Leeward B, Portsmouth, Rhode Island 02871, Estados Unidos